205, 11402 100 Street, Grande Prairie Grande Prairie, Alberta, T8V2N5
Listing Price
$0
commercial
0 beds
0 baths
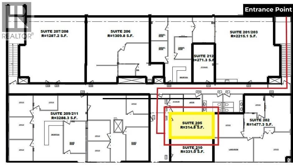
315 sqft
Property Details
Property Type
commercial
Year Built
1980
Subdivision
VLA Montrose
MLS Number
A2225967
Listed Date
Jun 2, 2025
Days on Market
325
Region / Community
VLA Montrose
Tours & Floorplans
Property Photo
205, 11402 100 Street - media 1
Property Photo
205, 11402 100 Street - media 2
Property Photo
205, 11402 100 Street - media 3
Property Photo
205, 11402 100 Street - media 4
Property Photo
205, 11402 100 Street - media 5
Property Photo
205, 11402 100 Street - media 6
Property Photo
205, 11402 100 Street - media 7
Property Photo
205, 11402 100 Street - media 8
Property Photo
205, 11402 100 Street - media 9
Description
Discover an ideal office space for lease, perfectly suited for professionals seeking a private and quiet work environment. This 315 sq. ft. upstairs office space offers excellent exposure while maintaining a high level of privacy. The base rent of this unit is priced to be $14.00 per square foot with an additional cost of $7.16 making the total monthly rent come to an affordable $555.45. plus utilities. Ready for immediate possession, this space is perfect for solo entrepreneurs or small business owners looking to move in without delay. Don’t miss out—Book a viewing today! (id:63190)
Location
205, 11402 100 Street, Grande Prairie, Alberta, T8V2N5
Loading map…
