167 Corner Glen Crescent NE, Calgary Calgary, Alberta, T3N2L8
Listing Price
$799,000
house
5 beds
4 baths
2314 sqft
Property Details
Property Type
house
Year Built
2026
Stories
2
Parking Spaces
4
Parking Type
Attached Garage
Heating
Forced air, Natural gas
Cooling
None
Lot Size
329 square meters
Lot Dimensions
329.00
Basement
Unfinished, Full, Walk out
Fireplaces
1
Construction
Poured concrete, Wood frame
Foundation
Poured Concrete
Annual Taxes
$1,177 (2025)
Subdivision
Cornerstone
MLS Number
A2272289
Listed Date
Nov 24, 2025
Days on Market
150
Zoning Description
R-G
Region / Community
Cornerstone
Parcel Number
0039601786
Tours & Floorplans
Description
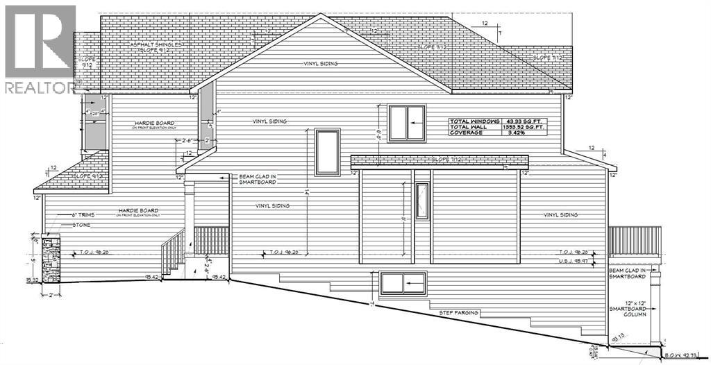
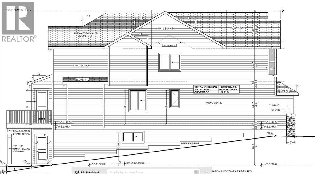
READY IN APRIL 2026 / BRAND NEW / WALK-OUT BASEMENT / LOT BACKING ONTO WETLANDS / SPICE KITCHEN / MAIN FLOOR BEDROOM + FULL BATH / TOTAL 5 BED + 4 FULL BATH / DUAL MASTER BEDROOM / NEW HOME GST REBATE (Eligibility restrictions apply). Amazing Design! Unique in Features! Brand New Home! Over 2300+ SQFT of stylish design welcomes you into this stunning FIVE BEDROOM and FOUR FULL BATH home located in the beautiful community of Cornerstone. You're welcomed to a thoughtfully designed living space that maximizes every inch while offering an abundance of space for your whole family to enjoy! The gorgeous OPEN FLOOR PLAN with 9 feet ceiling, invites you in to discover a lovely kitchen that boasts beautiful QUARTZ counter tops, sleek stainless steel appliance package with an upgraded cooktop, French Door Fridge with Internal Water + Ice, Built in Wall Oven/Microwave Combo and a power pack built-in cabinet hoodfan. A large walk-in SPICE KITCHEN and beautiful extended over-sized flush centre Island that overlooks the generous great room and dining room-Ideal for all entertaining. The main floor has a beautiful view of the NATURAL WETLANDS from windows on back. A sizeable 5TH BEDROOM on the main floor, perfect for a large family or working from home, along with full bath adjacent to this functional space. A mudroom with storage gives a convenient space for the family to access to and from garage. Upstairs, you will discover FOUR MORE BEDROOMS with TWO MASTER Bedroom's, with the main one boasting a VAULTED CEILING, a 5pc en-suite with dual vanities, stand alone shower, over sized bath, window overlooking natural wetlands and large walk-in closet. A centralized BONUS ROOM with VAULTED CEILING offers an additional living space and another 3-pc full bath and LAUNDRY WITH SINK and storage complete this level. ADDITIONAL FEATURES: Upgraded Fit and Finish , ALL BATHROOMS having standing showers, Lot backing onto expansive wetlands, a 12 x 11 feet deck with open views of wetlands, ir on spindle railing added to stairs, and raised 9' basement ceiling height and 3-piece rough-in plumbing along with patio door on the back. Situated close to the International Airport with quick access to both Deer Foot Trail and Stony Trail along with new amenities being added to the community continuously, you will enjoy all Cornerstone has to offer. A brand new build with all of the difficult decisions decided along with a functional and intelligent floorplan for a large family. (id:63190)
Features & Amenities
Appliances
RefrigeratorCooktop - GasDishwasherMicrowaveOven - Built-InHumidifierGarage door openerWasher & DryerCooktop - Induction
Exterior
ConcreteVinyl siding
Flooring
CarpetedVinyl Plank
Building
Other
Lot
OtherPVC windowNo neighbours behindEnvironmental reserve
Room Details
| Room | Level | Dimensions | Description |
|---|---|---|---|
| Kitchen | Main level | 9.13 Ft x 11.75 Ft | — |
| Dining room | Main level | 11.50 Ft x 13.08 Ft | — |
| Other | Main level | 5.58 Ft x 11.75 Ft | — |
| Great room | Main level | 15.00 Ft x 14.42 Ft | — |
| Bonus Room | Upper Level | 11.00 Ft x 14.92 Ft | — |
| Laundry room | Upper Level | 8.00 Ft x 5.00 Ft | — |
| Other | Upper Level | 8.58 Ft x 5.58 Ft | — |
| Other | Upper Level | 7.33 Ft x 4.58 Ft | — |
| Foyer | Main level | 7.33 Ft x 6.00 Ft | — |
| Other | Main level | 5.00 Ft x 6.00 Ft | — |
| Other | Main level | 7.08 Ft x 5.00 Ft | — |
| Bedroom | Main level | 9.50 Ft x 10.08 Ft | — |
| Bedroom | Upper Level | 11.00 Ft x 14.25 Ft | — |
| Bedroom | Upper Level | 10.08 Ft x 10.58 Ft | — |
| Bedroom | Upper Level | 10.08 Ft x 11.00 Ft | — |
| Primary Bedroom | Upper Level | 13.25 Ft x 13.83 Ft | — |
| 3pc Bathroom | Main level | 5.00 Ft x 8.50 Ft | — |
| 3pc Bathroom | Upper Level | 8.17 Ft x 5.00 Ft | — |
| 3pc Bathroom | Upper Level | 8.58 Ft x 5.00 Ft | — |
| 5pc Bathroom | Upper Level | 9.25 Ft x 11.00 Ft | — |
Location
167 Corner Glen Crescent NE, Calgary, Alberta, T3N2L8
Loading map…
