206 206, 7609 SPARROW Drive, Leduc Leduc, Alberta, T9E0H3
Listing Price
$0
industrial
0 beds
0 baths
1750 sqft
Property Details
Property Type
industrial
Year Built
2019
Lot Dimensions
0
MLS Number
43690472
Listed Date
Dec 22, 2025
Days on Market
122
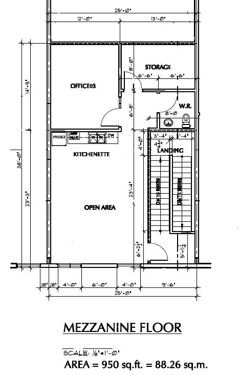
Description
FOR SALE OR LEASE. #206/#214 7609 Sparrow Drive offered for both sale or lease. Back to back units totaling 4450 SF of Office/Warehouse comprised of 2550 SF of open warehouse and 1900 SF of office space over 2 floors. Office improvements include 4 offices, open reception area, two washrooms, staff area with full kitchen and storage areas. Peaked warehouse ceilings up to 29 clear, radiant heat, floor drains, 3 phase power. 12x14 grade loading. Asking $725,000, Net Lease Rate $13.00/SFOther Property Types: IndustrialSubject Space Width: 25Subject Space Depth: 70Ownership Interest: PrivateTitle to Land: Fee SimpleRPR Survey Available: NoSeller Rights: NoAppointment Name: WayneAppointment Phone: 780-953-9934Lease Operating Costs Included: Taxes, Condo feesParagon Listing ID: E4463719 (id:63190)
Location
206 206, 7609 SPARROW Drive, Leduc, Alberta, T9E0H3
Loading map…
