14820 123 Avenue, Edmonton Edmonton, Alberta, T5L2Y3
Listing Price
$0
industrial
0 beds
0 baths
8612 sqft
Property Details
Property Type
industrial
Year Built
1968
Lot Dimensions
0
MLS Number
43690933
Listed Date
Dec 22, 2025
Days on Market
122
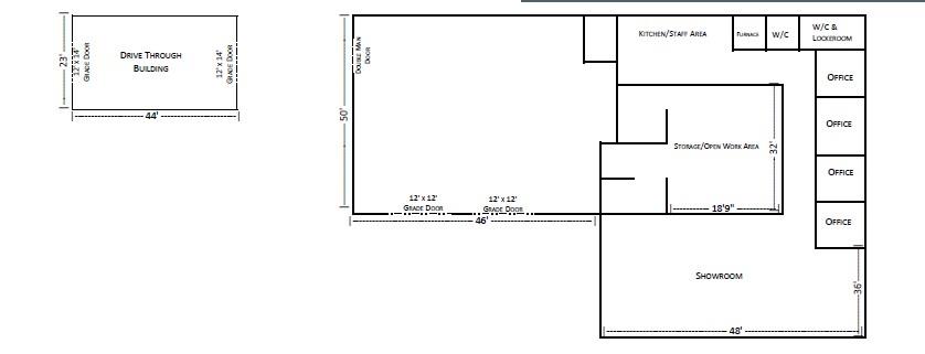
Description
8,612 sq.ft.± freestanding showroom/warehouse building available for lease on a 2.11-acre± site at 14820 – 123 Avenue in Edmonton. The site includes a 1,012 sq.ft.± drive-through building and features two grade loading doors, trench drain, and 400 amp power (TBC). The main building layout includes a showroom, four offices, kitchen/staff area, storage, and open workspace on both levels. Zoned BE (Business Employment) with exposure to 25,000 vehicles per day on 149 Street.Other Property Types: IndustrialOwnership Interest: PrivateSeller Rights: NoAppointment Name: Ryan BrownAppointment Phone: 780-964-8624Lease Operating Costs Included: Common area maintenance, building insurance, and management fees. Does not include property taxes.Paragon Listing ID: E4440623 (id:63190)
Location
14820 123 Avenue, Edmonton, Alberta, T5L2Y3
Loading map…
