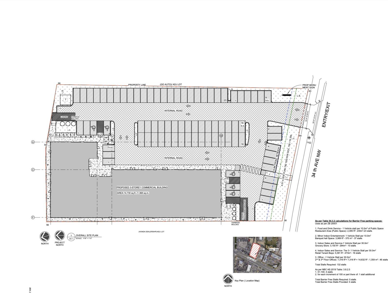
9508 34 Ave NW, Edmonton Edmonton, Alberta, T6E6S9
Listing Price
$0
commercial
0 beds
0 baths
3240 sqft
Property Details
Property Type
commercial
Year Built
2025
Parking Spaces
83
Lot Size
52272 square feet
Lot Dimensions
52272
MLS Number
44160736
Listed Date
Jan 15, 2026
Days on Market
98
Description
Excellent opportunity to acquire a well-located commercial property on 34 Avenue in south Edmonton. Strategically positioned with strong exposure and convenient access to major arterial routes, public transit, and surrounding residential and commercial areas. The site offers versatile potential for a variety of business uses, owner-occupiers, or investors. Close proximity to established amenities, retail, and services enhances long-term value and usability. A solid opportunity in a mature and well-connected south Edmonton corridor. (id:63190)
Location
9508 34 Ave NW, Edmonton, Alberta, T6E6S9
Loading map…
