602, 3720 Quesnay Wood Drive SW, Calgary Calgary, Alberta, T3E7H5
Listing Price
$679,500
townhouse
2 beds
2.5 baths
1195 sqft
Property Details
Property Type
townhouse
Year Built
2027
Stories
3
Parking Spaces
2
Parking Type
Attached Garage
Heating
Natural gas, Central heating
Cooling
See Remarks
Basement
None
Fireplaces
1
Half Baths
1
Foundation
See Remarks
HOA/Condo Fee
$372.47/Monthly
Subdivision
Currie Barracks
MLS Number
A2291599
Listed Date
Mar 7, 2026
Days on Market
47
Zoning Description
DC
Region / Community
Currie Barracks
Parcel Number
N202666329
Tours & Floorplans
Property Photo
THE LAMBENT PALETTE
Property Photo
THE LAMBENT PALETTE
Video Tour
602, 3720 Quesnay Wood Drive SW - media 3
Property Photo
THE LAMBENT PALETTE
Property Photo
THE LAMBENT PALETTE
Property Photo
THE LAMBENT PALETTE
Property Photo
THE CALIGA PALETTE
Property Photo
THE CALIGA PALETTE
Property Photo
THE CALIGA PALETTE
Property Photo
THE CALIGA PALETTE
Property Photo
THE CALIGA PALETTE
Property Photo
THE CALIGA PALETTE
Property Photo
THE CALIGA PALETTE
Property Photo
ELEVATION
Property Photo
ELEVATION
Property Photo
ELEVATION
Property Photo
602, 3720 Quesnay Wood Drive SW - media 17
Property Photo
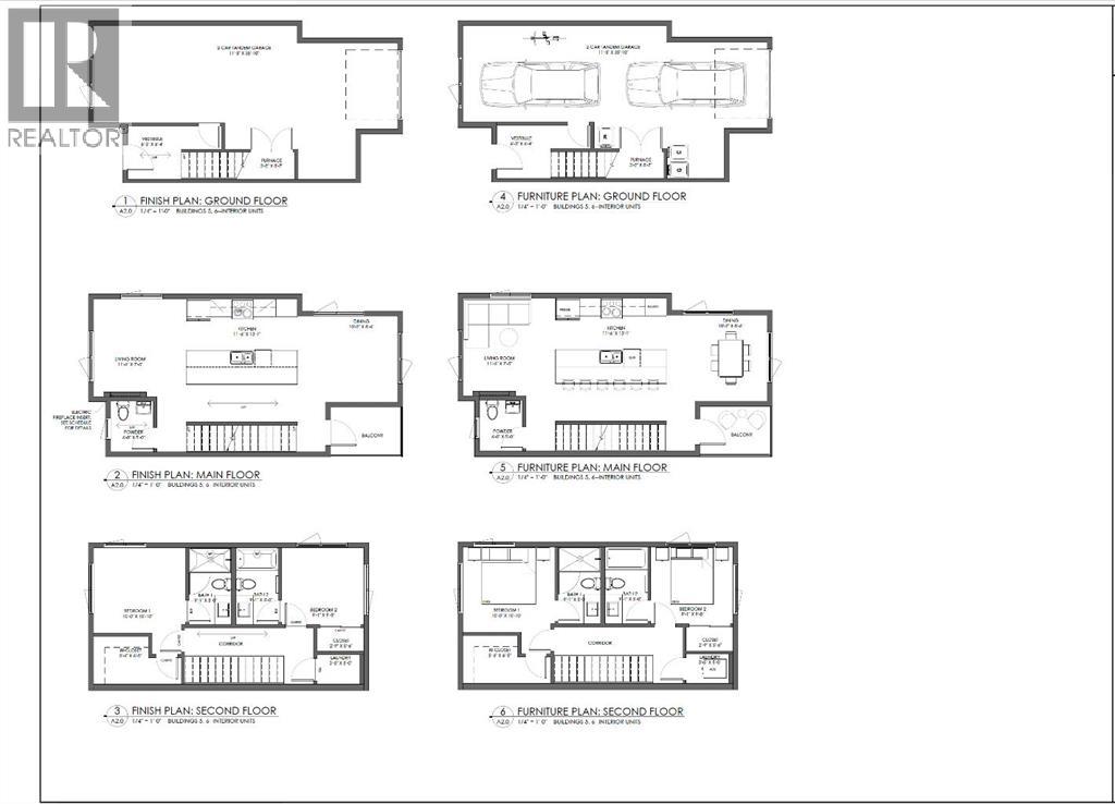
INTERIOR FLOOR PLAN
Property Photo
602, 3720 Quesnay Wood Drive SW - media 19
Description
Luxurious Townhome in Currie Barracks - A Legacy of DistinctionONE OF 30 LUXURY TOWN HOMES IN CURRIE BARRACKS. Welcome to an exquisite townhome nestled within the prestigious Nichola community in Currie Barracks. This master-planned intercity neighborhood is just 7 minutes from downtown, providing effortless access to an array of exceptional dining, shopping, and cultural attractions.Spanning 1195.26 sq. ft., this thoughtfully designed residence features two bedrooms, 2.5 baths, and a nice open concept floor plan, ensuring ample space for both relaxation and productivity. The home boasts 9-foot ceilings on every level, creating a sense of grandeur and openness that invites natural light to flow seamlessly throughout.The heart of the home is a gourmet kitchen, complete with an OVERSIZED GRAND ISLAND (13’0) complete with STYLISH PREMIUM QUARTZ BACKSPLASH & COUNTER TOPS. Ideal for culinary enthusiasts and entertaining guests. Luxurious finishes abound, including PREMIUM MILLWORK, knockdown ceilings, and a sophisticated STUCCO EXTERIOR accented by elegant brick veneer. The bathrooms elevate the home's luxury with MIRRORS THAT STRETCH TO THE CEILING, enhancing the sense of space and sophistication. Thoughtfully equipped with rough-ins for AIR CONDITIONING & SOLAR PANEL, and an ATTACHED TWO CAR GARAGE, the home also includes upgrade options for convenient EV CHARGING rough-ins for modern convenience. Step outside to enjoy serene outdoor living on the DURADEK-FINSHED BALCONIES or gather around the IMPRESSIVE 42” LANDSCAPE FIREPLACE for cozy evenings under the stars. The residence is outfitted with luxurious finishes such as 8-FOOT DOORS, 4-INCH. BASEBOARD, 3” CASINGS, ensuring a refined aesthetic throughout. Buyers can also choose from TWO ELEGANT PALLETTES; THE CALIGA OR LAMBENT allowing for personalization to match your style.Living in Currie Barracks means embracing a community that honors the legacy of Canadian heros such as Captain Nicola Kathleen Sar ah Goddard, after whom the NICHOLA TOWNHOMES project is named. This historic neighborhood beautifully blends tradition with modernity, offering immediate access to a nearby dog park, top-tier charter and private schools, and Mount Royal University—making it ideal for families and professionals alike.Indulge in a rich tapestry of cultural experiences, from art galleries to fine dining, all just moments away. This luxurious townhome is more than just a residence; it embodies a lifestyle of elegance, community, and honor.Don’t miss the opportunity to make this remarkable home yours. Schedule a private viewing today and immerse yourself in the luxury and legacy that awaits at Nichola (id:63190)
Features & Amenities
Appliances
RefrigeratorStoveOvenMicrowaveWasher & Dryer
Exterior
BrickStucco
Flooring
TileCarpetedVinyl Plank
Lot
Closet OrganizersNo Animal HomeNo Smoking HomeParking
Room Details
| Room | Level | Dimensions | Description |
|---|---|---|---|
| Dining room | Second level | 11.83 Ft x 10.33 Ft | — |
| Kitchen | Second level | 16.58 Ft x 12.67 Ft | — |
| Living room | Second level | 7.42 Ft x 9.67 Ft | — |
| 2pc Bathroom | Second level | 5.08 Ft x 6.00 Ft | — |
| Bedroom | Third level | 9.67 Ft x 9.25 Ft | — |
| Laundry room | Third level | 5.00 Ft x 3.42 Ft | — |
| 3pc Bathroom | Third level | 5.00 Ft x 9.25 Ft | — |
| 3pc Bathroom | Third level | 5.00 Ft x 9.25 Ft | — |
| Primary Bedroom | Third level | 10.92 Ft x 10.17 Ft | — |
| Foyer | Lower level | 6.33 Ft x 6.25 Ft | — |
Location
602, 3720 Quesnay Wood Drive SW, Calgary, Alberta, T3E7H5
Loading map…
