9, 615 36 Street NE, Calgary Calgary, Alberta, T2A4W3
Listing Price
$1,012,320
commercial
0 beds
0 baths
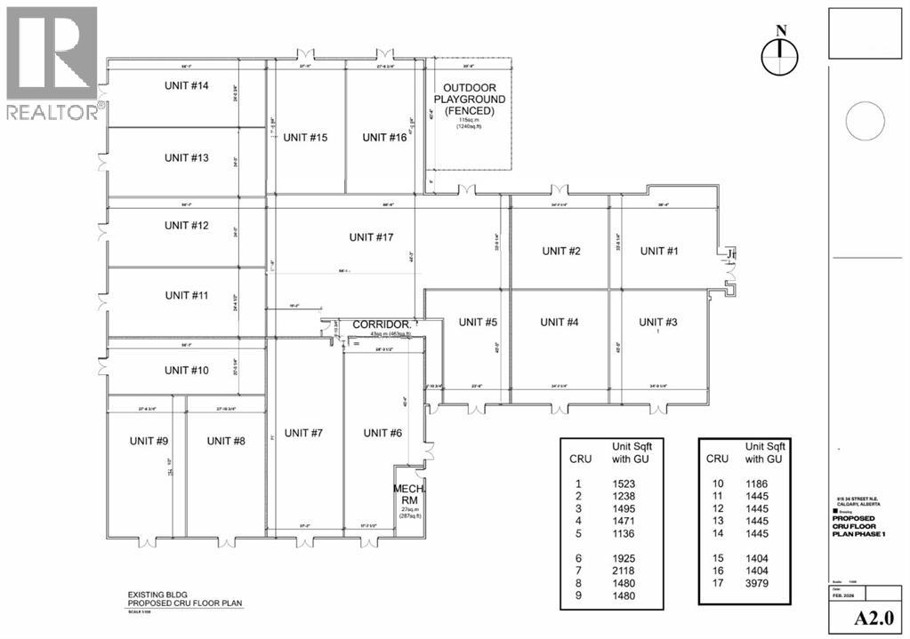
1480 sqft
Property Details
Property Type
commercial
Year Built
1974
Construction
Poured concrete
Subdivision
Franklin
MLS Number
A2301042
Listed Date
Apr 13, 2026
Days on Market
10
Zoning Description
I-C
Region / Community
Franklin
Parcel Number
T776108213
Description
Welcome to Station 36! Presenting a ±1,480 sq. ft. retail condo unit ideal for a psychiatry/psychology clinic, located in a soon-to-be fully renovated strip mall in NE Calgary. The entire building is being gutted and converted into brand new retail condos, offering an excellent opportunity for both owner-users and investors. Situated along a busy corridor with great exposure, this high-visibility location is just a 5-minute walk to the LRT station, providing strong accessibility for patients and staff. Surrounded by established residential communities and complementary businesses, the area ensures consistent traffic and long-term growth potential. Estimated possession March 2027. (id:63190)
Features & Amenities
Exterior
Concrete
Location
9, 615 36 Street NE, Calgary, Alberta, T2A4W3
Loading map…
