1,2, 615 36 Street NE, Calgary Calgary, Alberta, T2A4W3
Listing Price
$1,932,700
commercial
0 beds
0 baths
2761 sqft
Property Details
Property Type
commercial
Year Built
1974
Construction
Poured concrete
Subdivision
Franklin
MLS Number
A2301040
Listed Date
Apr 13, 2026
Days on Market
10
Zoning Description
I-C
Region / Community
Franklin
Parcel Number
T775931550
Description
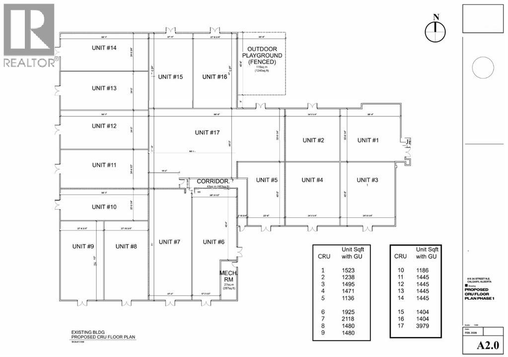
Welcome to Station 36!Presenting a ±2,761 sq. ft. Medical CRU for sale, perfect for a Dental Clinic. Located in a soon to be fully renovated commercial centre in Calgary. The entire building will be converted into brand new Medical and Retail CRUs for Sale. Great and rare opportunity for owner-users/investors. Located on one of the busiest major roads in Calgary with over 35,000 VPD. Great exposure to the LRT station which is 30 seconds away. Surrounded by established residential communities and complementary businesses, this location ensures consistent traffic and long-term growth potential.Estimated possession March 2027. (id:63190)
Features & Amenities
Exterior
Concrete
Location
1,2, 615 36 Street NE, Calgary, Alberta, T2A4W3
Loading map…
