19 Wynn Way, Fort Saskatchewan Fort Saskatchewan, Alberta, T8L3X9
Listing Price
$525,000
duplex
3 beds
3 baths
1800 sqft
Property Details
Property Type
duplex
Year Built
2026
Stories
2
Parking Spaces
4
Parking Type
Attached Garage
Heating
Forced air
Basement
Unfinished, Full
Fireplaces
1
MLS Number
E4482077
Listed Date
Apr 13, 2026
Days on Market
10
Region / Community
Westpark_FSAS
Parcel Number
ZZ999999999
Description
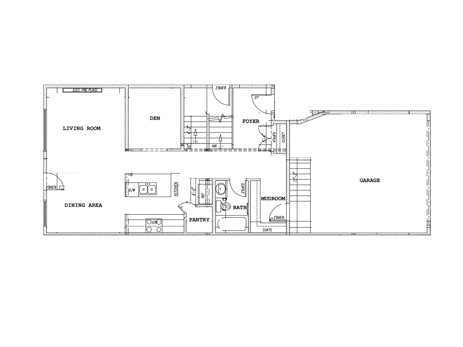
Brand-new, never lived in, and built for modern living, this 1,800 sq. ft. two-storey duplex in Windsor Pointe, Fort Saskatchewan offers style, space, and flexibility throughout. The main floor features 9 ft. ceilings, large windows for natural light, and a bright open-concept layout with a sleek electric fireplace in the living room. The dining area includes a sliding door to the backyard, and the kitchen features a large island with bar seating and a walk-in pantry. A main-floor den that can serve as a bedroom and a full 4-piece bath make this ideal for large, guest, or multigenerational families. Upstairs, the primary suite includes vaulted ceilings, a walk-in closet, and a 5-piece ensuite, followed by two bedrooms, a bonus room, a 4-piece bath, and upper laundry. The unfinished basement and backyard offer future potential, with an attached 2-car garage & a side entrance!! Nearby schools, parks, golf, & shopping. Option to build custom duplex! Many floors plan/options available. (id:63190)
Features & Amenities
Appliances
Hood FanGarage door openerGarage door opener remote(s)
Fireplace
InsertElectric
Building
Ceiling - 9ft
Lot
See remarksPark/reserveNo Animal HomeNo Smoking Home
Security
Smoke Detectors
Room Details
| Room | Level | Dimensions | Description |
|---|---|---|---|
| Living room | Main level | — | — |
| Dining room | Main level | — | — |
| Kitchen | Main level | — | — |
| Den | Main level | — | — |
| Primary Bedroom | Upper Level | — | — |
| Bedroom 2 | Upper Level | — | — |
| Bedroom 3 | Upper Level | — | — |
| Bonus Room | Upper Level | — | — |
| Laundry room | Upper Level | — | — |
Location
19 Wynn Way, Fort Saskatchewan, Alberta, T8L3X9
Loading map…
