465 Sioux Road, Sherwood Park Sherwood Park, Alberta, T8A4H2
Listing Price
$810,500
industrial
0 beds
0 baths
3242 sqft
Property Details
Property Type
industrial
Year Built
1980
Lot Dimensions
0
MLS Number
44706848
Listed Date
Apr 15, 2026
Days on Market
8
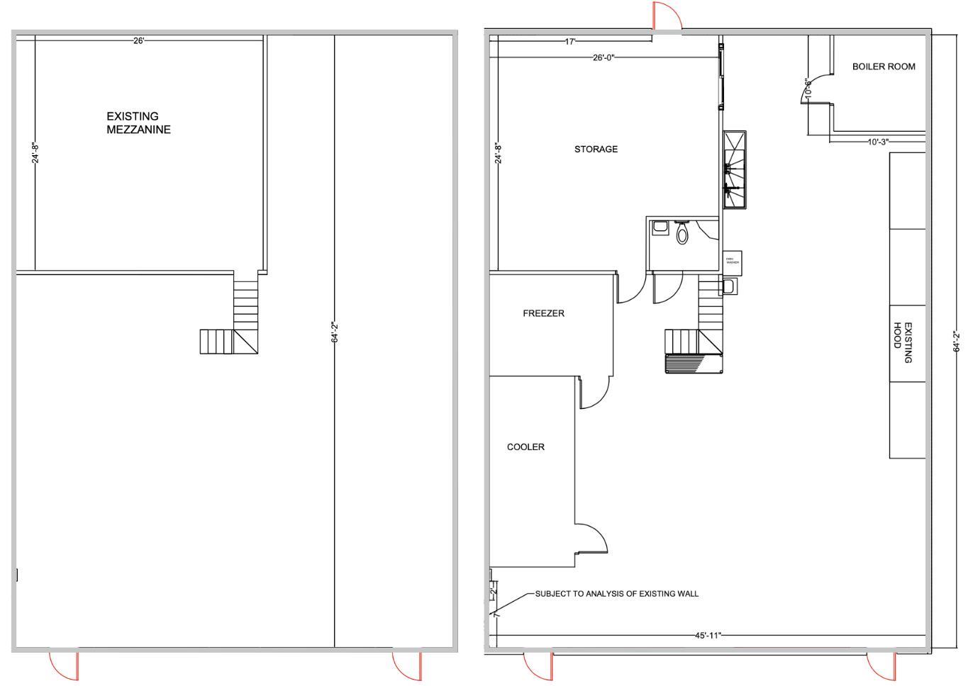
Description
These industrial/warehouse bays offer approximately ±3,242 SF and are available for immediate sale, with an additional ±659 SF mezzanine, bringing the total usable space to ±3,901 SF. Ideally located in Sherwood Park, AB, the property provides convenient access to major transportation routes and surrounding commercial hubs.The zoning supports a wide range of commercial and industrial uses, including warehouse, distribution, and office applications.Features include:Two 12’ x 12’ overhead doors per unitApproximately 18’ clear ceiling heightBuilt-in washroomTwo electrical panelsRooftop units (id:63190)
Location
465 Sioux Road, Sherwood Park, Alberta, T8A4H2
Loading map…
