37 Maclean Close, Blackfalds Blackfalds, Alberta, T4M0H4
Listing Price
$750,000
house
5 beds
3 baths
1253 sqft
Property Details
Property Type
house
Year Built
2026
Stories
1
Parking Spaces
4
Parking Type
Attached Garage, Garage, Concrete, Heated Garage
Heating
Forced air
Cooling
Central air conditioning
Lot Size
3927 square feet
Lot Dimensions
3927.00
Basement
Finished, Full, Separate entrance, Walk out
Fireplaces
1
Construction
Wood frame
Foundation
Poured Concrete
Annual Taxes
$1,253 (2025)
Subdivision
Mckay Ranch
MLS Number
A2304807
Listed Date
Apr 24, 2026
Days on Market
0
Zoning Description
R1M
Region / Community
Mckay Ranch
Parcel Number
0036688893
Description
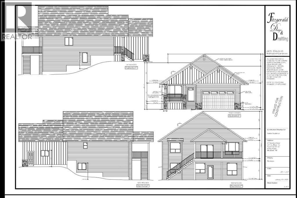
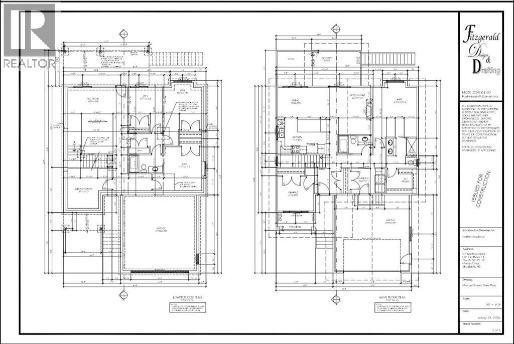
NOW OFFERED BY HERTER BUILDERS, Central Alberta's Premier Custom Homebuilder. This is a newly built, high end, executive bungalow on a large pie lot on Maclean Close. If you are a buyer with a discerning taste, this one may be for you. This home has an expected completion date of mid July and will be completely finished (including basement) and will be fully landscaped front and back. You'll love the exterior, with crisp white Hardie Board siding in the front and modern style windows. The front steps will be full cement steps and walkway. The floor plan offers the owner's suite and second bedroom on the main. The owner's suite is very spacious and has a full bathroom with a custom tiled curbless shower and dual vanity. There's a large walk-in closet attached. All of the bathrooms will be tiled in a 24 X 24 inch light tile for that clean and modern effect and will have quartz countertops. The main living area is open and bright, with the kitchen, dining and great rooms open to each other. The kitchen has a large island, tiled backsplash, and quartz countertops. The great room has a feature wall with a gas fireplace with wood mantle. The main living area opens up to the large deck, which has both an open and a covered area for your comfort and use. The main floor laundry room is very convenient and has cabinets and quartz countertop. The floors on the main will have hardwood throughout. The lower level is a full walk-out level, with large windows, allowing maximum light. It has a spacious family room, three large bedrooms, and a full bathroom. The basement is completely spray foamed for maximum efficiency. The mechanical systems include a humidifier, HRV system, and central air conditioning for your year round comfort. The 22 X 22 garage is heated with an overhead heater and has extensive room for storage. There will be a large concrete patio at the rear walk-out door. Both front and rear yards will be sodded and landscaped. The home is currently at the edge of town , with sweeping views to the east. This gorgeous luxury home will be fully finished and ready for its first owner. New Home Warranty Included and GST Rebate to be assigned to the Vendor. (id:63190)
Features & Amenities
Appliances
Microwave Range Hood Combo
Flooring
TileHardwoodCarpeted
Lot
No neighbours behindCloset Organizers
Architectural Style
Bungalow
Room Details
| Room | Level | Dimensions | Description |
|---|---|---|---|
| Dining room | Main level | 9.00 Ft x 10.50 Ft | — |
| Great room | Main level | 13.17 Ft x 16.00 Ft | — |
| Kitchen | Main level | 9.50 Ft x 13.58 Ft | — |
| Primary Bedroom | Main level | 13.92 Ft x 12.25 Ft | — |
| Laundry room | Main level | 7.00 Ft x 9.50 Ft | — |
| Bedroom | Main level | 9.67 Ft x 10.08 Ft | — |
| Bedroom | Lower level | 12.25 Ft x 10.58 Ft | — |
| Bedroom | Lower level | 11.75 Ft x 10.58 Ft | — |
| Family room | Lower level | 18.50 Ft x 16.67 Ft | — |
| 5pc Bathroom | Main level | — | — |
| 4pc Bathroom | Main level | — | — |
| 4pc Bathroom | Lower level | — | — |
| Bedroom | Lower level | 12.25 Ft x 10.58 Ft | — |
Location
37 Maclean Close, Blackfalds, Alberta, T4M0H4
Loading map…
